
DESIGN & DEVELOPMENT
PORTFOLIO
Commercial Design
An understanding through public & private spaces. We'll take a look at few approaches to achieve this.
Construction Drawing
Drafting detail design for new and improve functions of material.
Urban Design
To provide more greener space within New York City. https://www.youtube.com/watch?v=jyljXGS1yiw&t=2s
Net-Zero Facade Design.
With the world ever so changing at face pace due to technology advancement. It's given that we are leaving behind carbon footprint due to all the excess waist of natural gasses from mining materials. That being said the main goal is to increase our sustainability with the modern technology resources to achieve a Net-Zero carbon footprint. On the East and South facade of the building we will be using PV (Photovoltaic Glass Medium & Low Transparency), to allow absorption of the sun rays to power the essential of building electricity. As for the West and North facade of the building we will be using typical glazing with aluminum spandrils.
Net-Zero Facade & Building Render Gallery
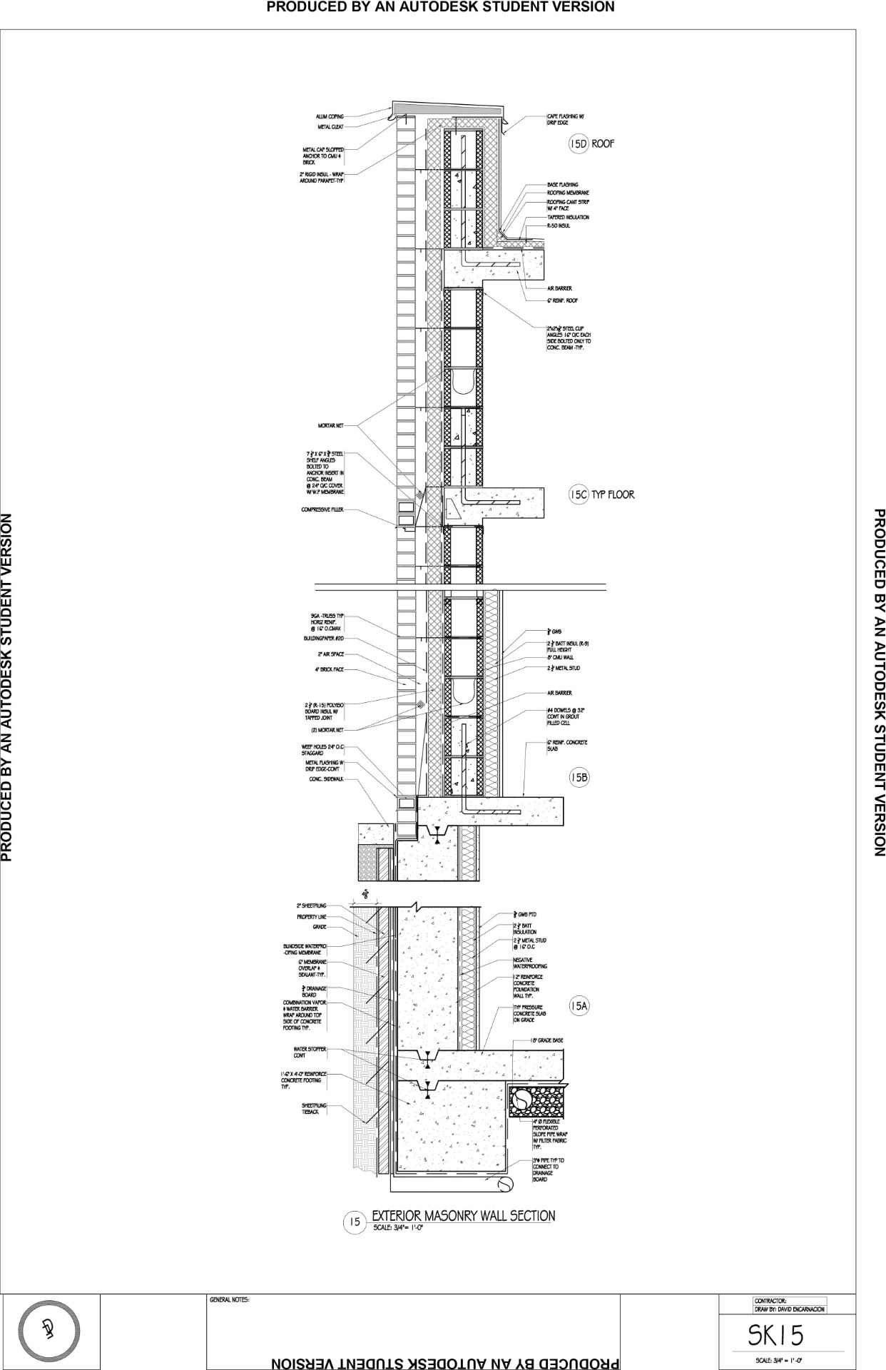
Exterior Masonry Wall Section for Mixed-Climate

Here is full detail of Exterior Masonry Wall Sections. It consist of the the foundation support system which is slab on grade, It shows blinding side waterproofing along with 3/4" drainage board as well combine water & vapor barrier wrap around top side of the continue footing.
As progressing upwards of the section, here is a section cut for a brownstone house. The main objective here was to make sure that there is no water leakage into the structure due to condensation. Thus, what we did here for this section, we went with a 4" brick face for exterior, 2" air space, #20 Building paper, Weep holes 24" on center, Metal Flashing with drip edge for the exterior. For the interior we had 5/8" Gypsum Wall Board for finish then behind it was, 2- 1/2" BATT insulation (R-9) full height The BATT insulation will fill in the space between the 2-1/2" Metal Stud that are 16" on center. This will provide great insulation for a mixed climate residential house.
The top of the parapet, will have an aluminum copping with a metal cleat. This will be anchor to the exterior brick and CMU ( concrete masonry unit) by a metal cap slope. Underneath the cap slope there will be typical parapet 2-1/2" rigid insulation wrap around to still be able provide the roof part with insulation
Construction Drawing Wall Section
Enter subtitle here
Net-Zero Commerical Building
The main objective was to achieve an energy efficient commercial building from use of solar panel and efficient facade design. The top hat would have solar panel angle at the sun, the facade would have photovoltaic glass with medium transparency on South & East side of the tower.
North & West would have typical glazing with aluminum spandril. Within the annual year the building would consume less energy due to the efficient thermals and facade designing,
Conceptual Office Design with Sustainability Materials
This here is Conceptual Office Design with Sustainability materials. The building is set in a metropolitan city. It will consist of Onyx Amorphous Silicon Photovoltaic Glass and standard energy efficient solar panels on the roof. The glass facade will provide clean energy to than crystalline silicon glass in overcast weather condition and even in high temperature condition. It can be tinted to the client need while still maintaining visible natural daylighting into office. The structure is done with local source brick masonry, and for the floors are typical commercial flooring. Roof structure is made with a non-censoring resistant material to withstand typical weather condition.
First floor of the building will have a receptionist desk as well a waiting area for new commers to onboard. The second floor is where typical office is located. As for the Third floor, is the typical layout for an office break room. For the finally floor it will be a reaction room, for the employees to relax while on break or after work.
The idea behind this Conceptual Office Design is to bring light towards the future of sustainability. To seek out new innovation ways to design a more sustainable building that can be applied anymore win the world


